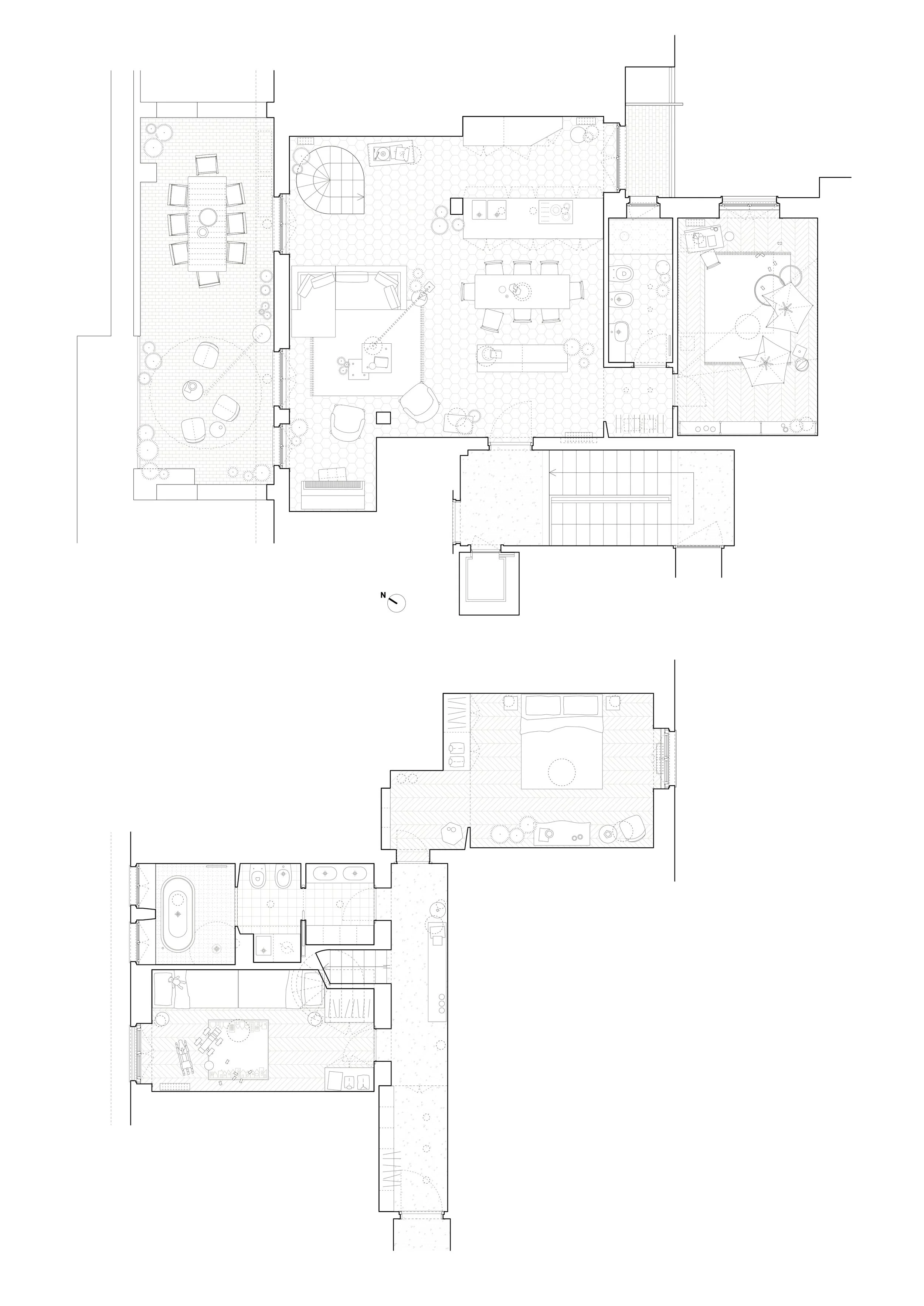
SAVONA | 07.019

ristrutturazione appartamento 165mq

Milano

gennaio 2019 - luglio 2019

……………………………………………………..………………………………………

sam-architects | Umberto Pomini, Giuseppe Damonte, Cristiana Belloni, Alessia Annunziata

fotografie di Nicolò Panzeri

pubblicato su AD-Italia.it