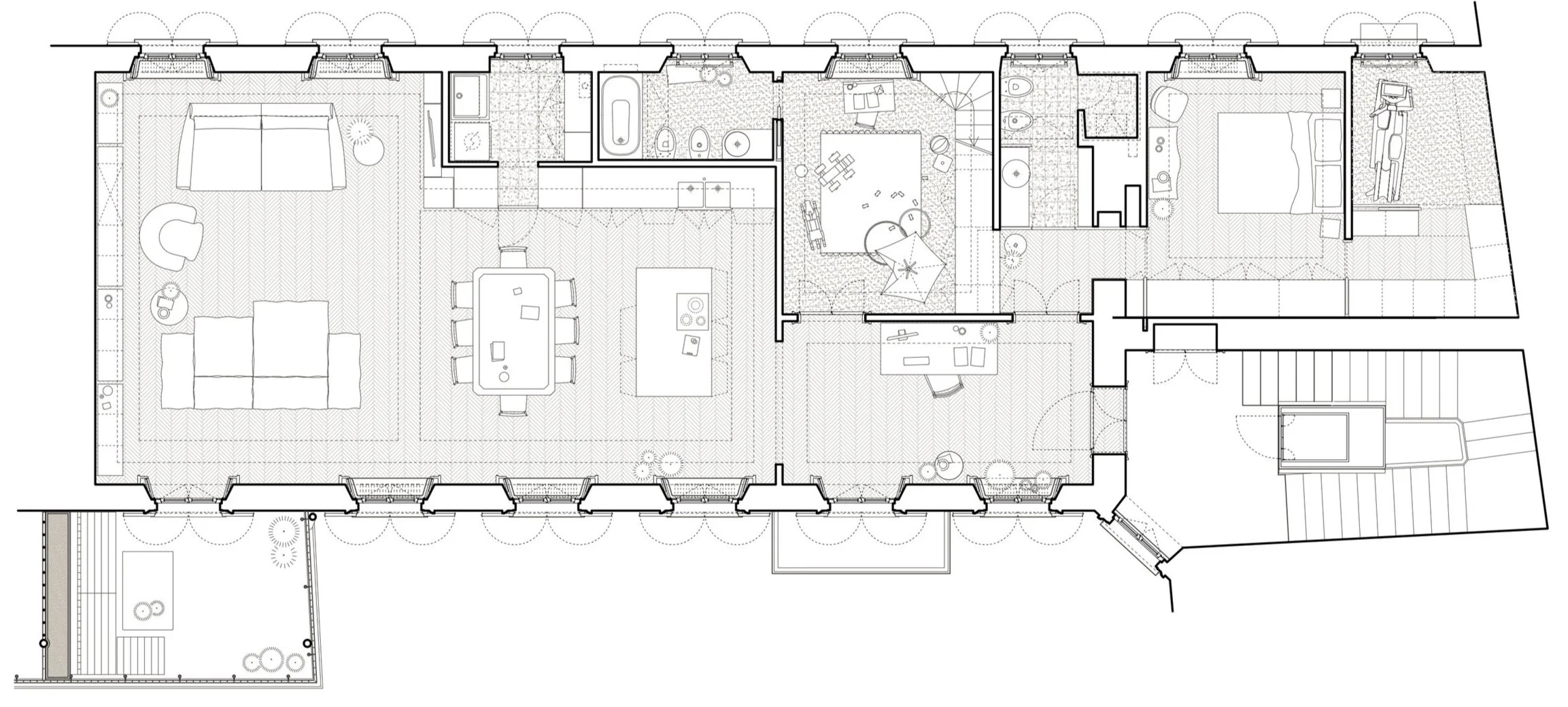
FORO BUONAPARTE | 08.023

ristrutturazione appartamento 150 mq

Milano

gennaio 2023 - agosto 2023

……………………………………………………..…………………………………………

sam-architects | Umberto Pomini, Giuseppe Damonte, Fabio Scavazza, Margherita Ruggieri

fotografie di Nicolò Panzeri

pubblicato su Elledecor.it