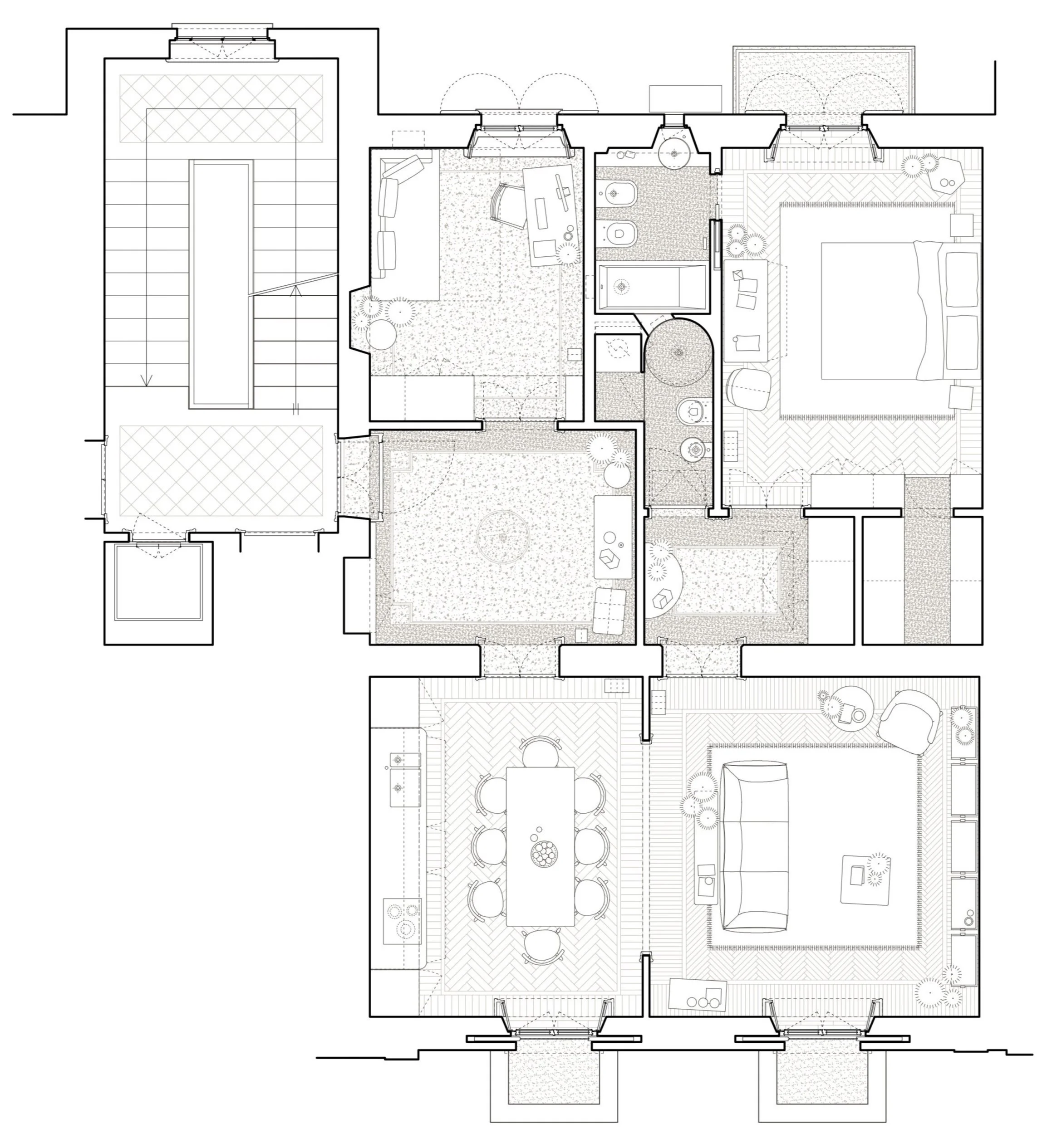
NAPO TORRIANI | 07.023

ristrutturazione appartamento 100 mq

Milano

dicembre 2022 - luglio 2023

……………………………………………………..…………………………………………

sam-architects | Umberto Pomini, Giuseppe Damonte, Fabio Scavazza, Margherita Ruggieri

fotografie di Nicolò Panzeri

pubblicato su Elledecor.it